Maison de la sécurité du Val de Bagnes

Val de Bagnes Security Centre: combining innovation, sustainability and functionality

Set in a challenging yet inspiring location, the Val de Bagnes Security Centre is an architectural response tailored to its alpine environment. Located between wooded slopes to the south and the wastewater treatment plant to the north, this project integrates technical and natural constraints to create unique opportunities.

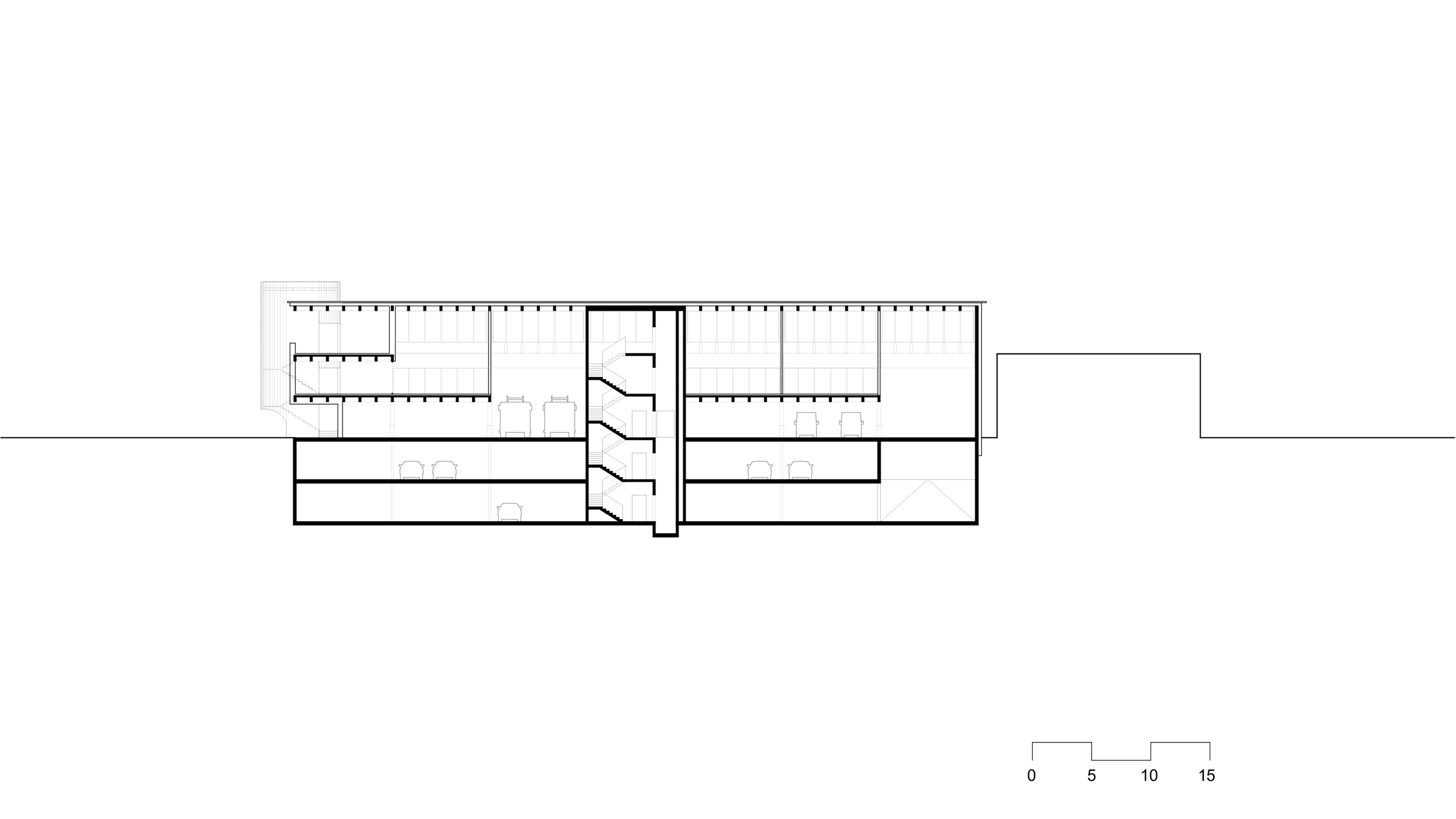
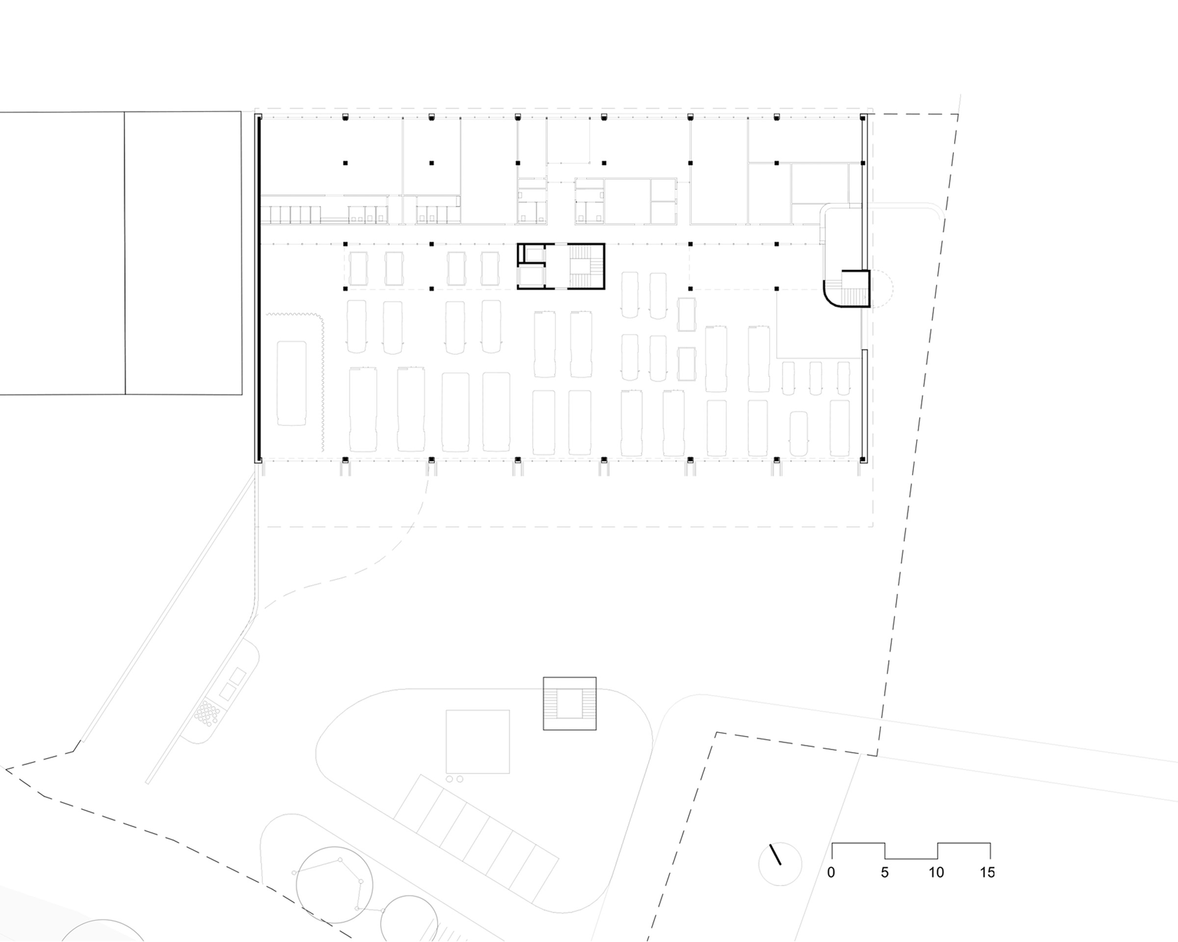
The compact building, strategically located on the western and northern edges of the site, frees up a large functional space to the south, ideal for manoeuvres, exercises and access. This layout makes the most of natural light and panoramic views of the Val de Bagnes. The volume, characterised by a large roof split in two, not only allows for a clear reading of the spaces but also provides generous light into the heart of the building. The main entrance, located at the junction of the two sides, symbolises both a welcome and an orientation towards the upper part of the valley.

The project stands out for its functional and flexible design, based on a regular and versatile grid. This grid meets the large spans required for the hangar while adapting to office spaces and car parks. The connections between the technical and administrative areas are optimised to offer fluidity and efficiency, without compromising on comfort or functionality. The common areas, located in the centre of the building, encourage interaction and share uses such as the conference room and circulation areas.

The use of natural and sustainable materials reflects an ecological and responsible approach. The wood and wood-concrete structure blends in with the alpine landscape, while raw earth partitions provide thermal inertia and a warm atmosphere. Concrete, limited to the cores and basements, is used sparingly to ensure both stability and reduced environmental impact.

The project's energy approach is exemplary. The roofs, which are entirely covered with photovoltaic panels, ensure energy production that exceeds the site's needs. In addition, the planned connection to a heat pump using waste from the nearby wastewater treatment plant would allow for optimal use of local resources. Natural ventilation, combined with a bioclimatic design, ensures optimal indoor comfort while minimising energy requirements.

Natural light plays a central role in the design. The north-facing administrative offices benefit from diffused light that enhances the unobstructed views of the landscape. The hangar is lit by strategically placed openings, reinforced by a luminous ‘fault’ separating the volumes.

Finally, the building has been designed to be scalable. The lightweight roof can be raised to accommodate an additional floor, allowing for future expansion without altering the architectural integrity. This flexibility ensures a sustainable response to long-term needs.
The Val de Bagnes Security Centre thus embodies an architecture that combines functionality, sustainability and respect for the Alpine context. Through careful implementation and judicious use of resources, it aims to be both an effective tool for the security services and a showcase for the region's ecological and social ambitions.

Maison de la sécurité du Val de Bagnes

Project
Maison de la sécurité du Val de Bagnes
Program
Le projet de la Maison de la sécurité du Val de Bagnes vise à regrouper sous un même toit plusieurs forces d'intervention (pompiers, police, sécurité civile, etc.), en offrant des espaces fonctionnels et mutualisés adaptés aux besoins actuels et futurs, tout en respectant le contexte géographique et environnemental de la vallée. L'objectif est de créer un bâtiment durable, flexible et bien intégré, capable de répondre aux défis sécuritaires croissants de la région.
status
Competition
location
Suisse, Val de Bagnes
year
2024 - 2024
Floor area
7396 m2
Collaborators
Théophane Bachollet, Antoine Barc, Frédéric Comby, Santiago Pagés, Romain Péquin, Kenneth Ross, Gianmaria Sagaria, Joana Simões Monteiro, Paul Vagogne
Structural
engineer
Dr Lüchinger+Meyer Ingénieurs civils SA
Safety
engineer
ISI Sàrl - sécurité incendie
Others
consultants
Physique du bâtiment / Durabilité: Estia SA
Photo
credits
Images: Atelier Brunecky
Maison de la sécurité du Val de Bagnes

Maison de la sécurité du Val de Bagnes

2024 - 2024 · Suisse, Val de Bagnes · Administrative

An architectural project in harmony with its environment

Faced with the challenges of a complex site, the Val de Bagnes Security Centre transforms every constraint into an opportunity. Compact, functional and sustainable, this project combines Alpine aesthetics with industrial rationality. A wooden structure, natural materials such as raw earth, and a bioclimatic approach result in an economical, flexible building that opens onto the landscape. Designed to accommodate a variety of operational functions, it ensures comfort, natural light and sustainability while anticipating future needs.
+ read more
Project
Maison de la sécurité du Val de Bagnes
status
Competition
location
Suisse, Val de Bagnes
year
2024 - 2024
Client
Floor area
7396 m2
+ credits