Rhodanie 58, Lausanne, Switzerland

The integration of a new building on Avenue de Rhodanie between two existing developments was quite a contextual, architectural and structural challenge. Firstly, the wish to be volumetrically west-aligned with the building which our firm designed in the 1990s as the administrative headquarters for Golay Buchel and, secondly, east-aligned, to maintain the perspective over the premises of the Maison du Sport International (MSI). Rhodanie 58 is an extremely simple yet rigorous volume which fits in harmoniously with the Avenue de Rhodanie environment.

City of Lausanne authorities have always wished to make this Avenue a showcase for the west-side entry to the city with representative buildings upstream whilst preserving the lakeside part with landscaped areas, sportive and cultural amenities.

A little over a century ago, the shores of lac Léman bordered Avenue de Rhodanie, but since then the land has been filled in, in particular for the 1964 National Exhibition. This explains the close proximity of the water table and the special construction requirements which were taken into account for this new building.

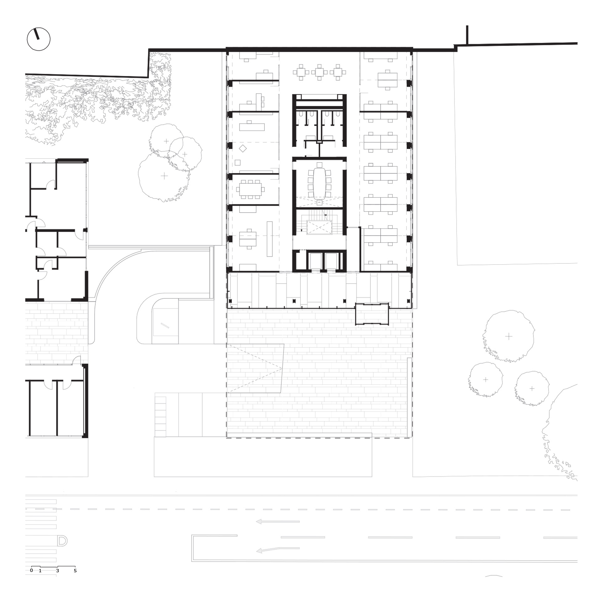
The 18-metre, two-storey cantilever (overhang) was negotiated with the urban planning department when the district plan was drawn up. It gives Rhodanie 58 a rather distinct identity and scenescapes the entrance forecourt. The static, structural concept was developed hand-in-hand with Ingeni, structural engineering company in Lausanne. This cantilever required, of course, a complex structure with two large Vierendeel beams installed on the lateral facades which are then supported by a central reinforced concrete nucleus. This nucleus groups together the building’s vertical circulations as well as its technical installations and services. Moreover, its heart is hollowed out to give way to a spacious atrium which lets natural daylight enter down to the lower floors. This construction concept enabled us to leave large open spaces totally free from pillars thus offering optimal flexibility for creating office spaces.

The building’s structural complexity remains particularly discreet, behind a facade totally covered with tinted glass enhanced with enamelled and opaque features. This glass facade gives the building its unique character and unity. Glass panes are fixed and ventilated. Double glazing, which is both thermal- and acoustic-insulating, has been installed on the inner faces. These windows open for ventilation purposes as well as for cleaning. Solar protections, indispensable for controlling natural daylight in the office spaces, are fitted in the spacing between the outer inner panes.

Furthermore, the users of these office spaces are offered excellent comfort, totally in line with the latest, cutting-edge technology (chilled ceilings, access floors, lighting, etc.).

More especially at night-time, the building’s cantilever showcases the spectacular, over 100 m2 wall of the lobby. Very early on, and in agreement with the client, we imagined how we could highlight this space. At night-time, the indirect ceiling lighting gives the impression that the front part of the building is actually levitating and offers perfect visibility for hosting major artistic creations. We had the great pleasure to organize a competition with 5 young Western-Swiss artists and Maya Rochat’s works were selected and installed in the lobby and those of Anouchka Perez in the atrium. This concept could be renewed every other year and would be a way of perceiving the building in a new light whilst promoting the creativity of young artists from Western Switzerland.

Rhodanie 58, Lausanne, Switzerland

Project
Rhodanie 58, Lausanne, Switzerland
Program

Office Building

status
Built
location
Suisse, Lausanne
year
2010 - 2018
Client
Rhodanie Investment SA
Floor area
5260 m2
Team
Lausanne

Jacques Richter, Ignacio Dahl Rocha, Frédéric Comby, Manuel Perez, Santiago Pagés, Maialen Monte, Christophe Gachnang, Barbara Boni, Séverine Routhier, Marco Turin

Team
Buenos Aires

Bruno Emmer, Facundo Morando, Bruno Goroni, Clara Carrera.

Award
Prix Bilan de l’Immobilier, Commercial and administrative building, Rhodanie 58, Lausanne
Structural
engineer
Ingeni SA
Geotechnical
De Cérenville géotechnique SA
HVAC
engineer
Weinmann-Energies SA
Sanitary
engineer
Fluides concepts SA
Electrical
engineer
MAB-Ingéniérie
Safety
engineer
BG Ingénieurs conseils SA
Facade
consultant
Arteco SA
Artist
Maya Rochat, Anouchka Perez
Photo
credits
Fernando Guerra | FG+SG / Olivier Wavre
Rhodanie 58, Lausanne, Switzerland

Rhodanie 58, Lausanne, Switzerland

2010 - 2018 · Suisse, Lausanne · Administrative

The integration of a new building on Avenue de Rhodanie between two existing developments was quite a contextual, architectural and structural challenge. Firstly, the wish to be volumetrically west-aligned with the building which our firm designed in the 1990s as the administrative headquarters for Golay Buchel and, secondly, east-aligned, to maintain the perspective over the premises of the Maison du Sport International (MSI). Rhodanie 58 is an extremely simple yet rigorous volume which fits in harmoniously with the Avenue de Rhodanie environment.
+ read more
Project
Rhodanie 58, Lausanne, Switzerland
status
Built
location
Suisse, Lausanne
year
2010 - 2018
Client
Rhodanie Investment SA
Floor area
5260 m2
+ credits